| Rozmiar zewnętrzny (m) | 5700×3800 |
| Grubość balika (mm) | 40 |
| Powierzchnia zabudowy (m2) | 21,6 |
| Powierzchnia domku użytkowa (m2) | 13,6 +taras 6,9 |
| Powierzchnia podłogi (m2) | 14 |
| Powierzchnia sufitu (m2) | 15 |
| Powierzchnia dachu (m2) | 28 |
| Rodzaj dachu | dwuspadowy |
| Kąt nachylenia dachu ° | 18,3 |
| Deski dachowe | 19mm |
| Pokrycie dachu | opcja dodatkowa |
| Taras | tak (6,9m2) |
| Podłoga | 19mm |
| Ilość pomieszczeń | 2 |
Planujesz budowę drewnianego domu? Oszczędź sobie nerwów i czasu – powierz to zadanie nam! Od wielu lat budujemy piękne domy z bali, które stają się ulubionym miejscem wypoczynku i życia.
Własne zaplecze technologiczne oraz zespół profesjonalistów pozwalają nam oferować najbardziej atrakcyjne ceny bez dodatkowych kosztów. U nas możesz kupić każdy dom w leasingu lub skorzystać z korzystnej opcji ratalnej.
Tanie domki letniskowe: Boro plus 4×6
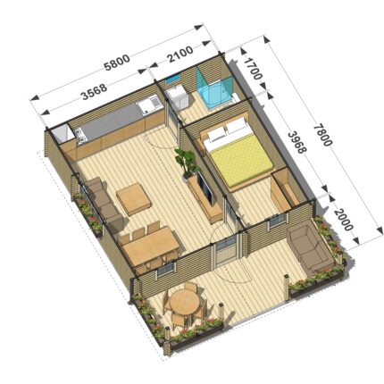
Letniskowy domek z bali Boro plus to kompaktowa i funkcjonalna konstrukcja o powierzchni 13,7 m², idealna na wypoczynek na działce.
- przestronny salon połączony ze strefą kuchenną o łącznej powierzchni 11 m² tworzy harmonijną przestrzeń, w której można wygodnie wypoczywać i gotować
- łazienka o powierzchni 2,7 m² zapewnia wszystkie niezbędne warunki do codziennej higieny
- zadaszony taras o powierzchni 6,9 m² to idealne miejsce na poranną kawę lub wieczorne spotkania z przyjaciółmi na świeżym powietrzu
- dwuspadowy dach nadaje domkowi stylowy wygląd i chroni go przed warunkami atmosferycznymi
- duża liczba okien i przeszklone drzwi wypełniają wnętrze naturalnym światłem, tworząc poczucie przestrzeni i bliskości z naturą
Czy warto budować dom z drewna?
Zdecydowanie tak! Oto kilka powodów, dla których drewniane domy z bali to doskonały wybór:
- Ekologia – drewno to naturalny i bezpieczny materiał, dlatego w drewnianym domu bez obaw mogą mieszkać rodziny z dziećmi i alergicy
- Inwestycja – jeśli w przyszłości zdecydujesz się sprzedać swój drewniany domek letniskowy, zyskasz na jego wartości
- Trwałość – przy odpowiedniej pielęgnacji Twój drewniany posłuży przez dziesiątki lat, a może nawet stanie się dziedzictwem dla wnuków
Ile kosztuje drewniany dom „pod klucz”?
Aktualne ceny domków letniskowych znajdziesz na naszej stronie internetowej.
Budowa domków działkowych z Horton: dlaczego warto nam zaufać?
- doświadczenie – ponad 20 lat
- ponad 1000 zrealizowanych projektów
- tylko wysokiej jakości materiały i precyzyjne przestrzeganie technologii
- umowa z dokładną specyfikacją
- możliwość zakupu domu drewnianego „pod klucz”, bez potrzeby szukania dodatkowej ekipy budowlanej
- terminowa realizacja produkcji, dostawy i montażu
- 2-letnia gwarancja na wszystkie domki letniskowe
Zainteresowany sprzedażą gotowych domków letniskowych?
Wystarczy do nas zadzwonić – odpowiemy na wszystkie Twoje pytania!














Harvia M3 ma klasyczny wygląd i przeznaczony jest dla małych saun opalanych drewnem. To dzięki niemu, podczas kąpieli, możemy doznać niezapomnianych wrażeń oraz odczuć tradycyjną atmosferę sauny. Ciepło oraz odpowiednia cyrkulacja powietrza gwarantują przyjemną kąpiel.

















