|
Marzysz o własnym domu, który będzie odzwierciedlał Twój styl, spełniał Twoje oczekiwania dotyczące komfortu, estetyki i w pełni zaspokajał Twoje potrzeby? Firma Horton, oferująca domki letniskowe i całoroczne – spełni Twoje marzenie!
Realizujemy montaż domków letniskowych i oferujemy pełne wsparcie na każdym etapie ich powstawania, począwszy od projektu architektonicznego, aż po kluczowe momenty wykończenia. Zwracając się do nas, otrzymasz ekologiczny i w pełni gotowy do zamieszkania budynek, który posłuży Ci przez wiele lat.
Domek letniskowy Argus 6×7
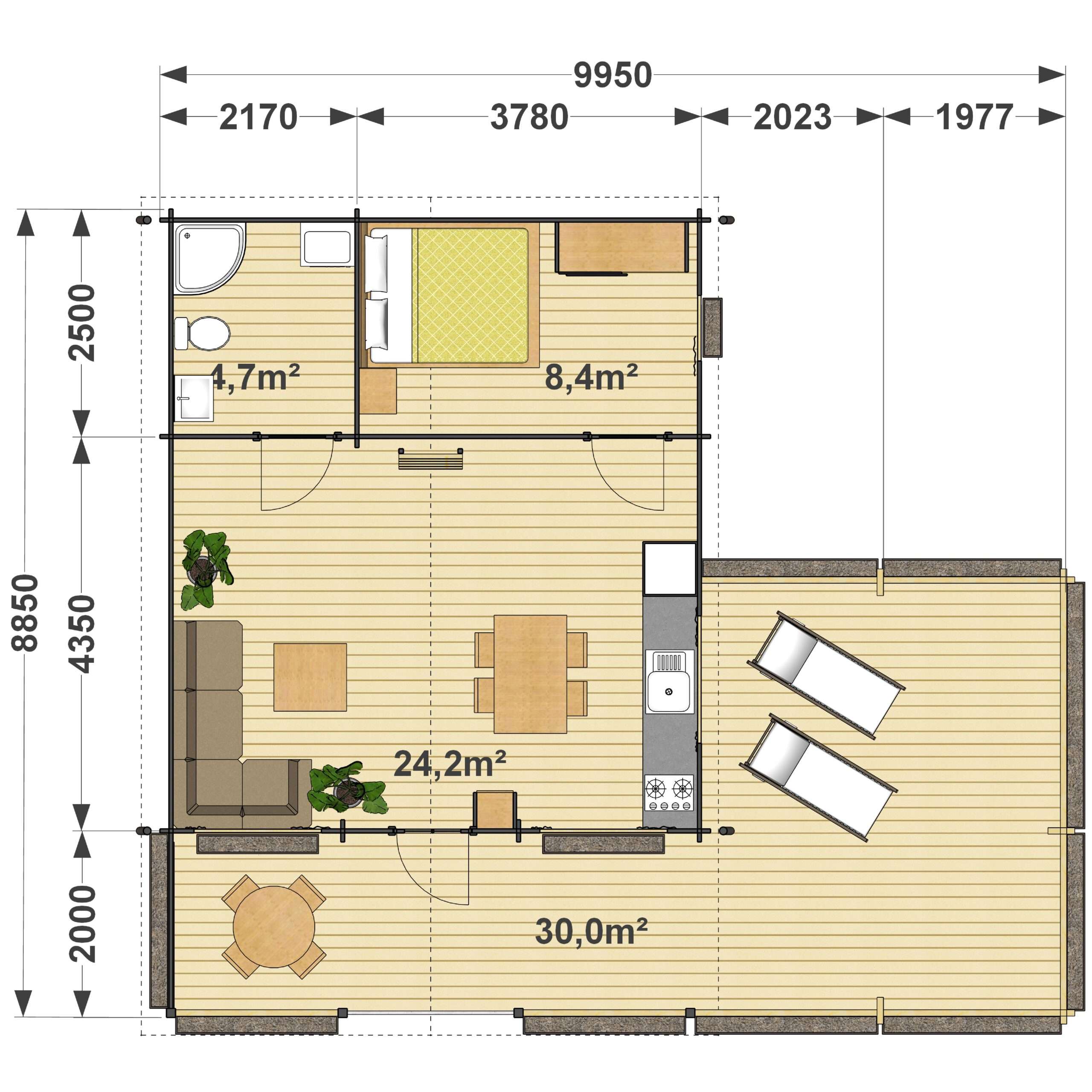
Przedstawiamy domek letniskowy Argus 6x7. Ten budynek o łącznej powierzchni 50,4 m² stanie się prawdziwą oazą dla Twojej rodziny. Został zaprojektowany zgodnie z nowoczesnymi wymaganiami dotyczącymi komfortu i funkcjonalności.
Na parterze znajdują się główne strefy życia i wypoczynku. Przestronny salon o powierzchni 24,2 m² jest połączony z kuchnią, co tworzy otwartą i jasną przestrzeń do wspólnego spędzania czasu. Duże okna zapewniają maksymalne doświetlenie naturalnym światłem, a wyjście na taras z salonu pozwala cieszyć się świeżym powietrzem i pięknymi widokami na naturę. Na parterze znajduje się również funkcjonalna sypialnia o powierzchni 8,4 m² oraz łazienka 4,6 m².
Antresola o powierzchni 13,2 m² stwarza dodatkową przestrzeń wypoczynkową.
Horton: budowa domków letniskowych "pod klucz"
Gotowe domki letniskowe od naszej firmy to nie tylko gwarancja jakości, ale także wiele korzyści dla Ciebie:
- indywidualne podejście do każdego klienta, to nie tylko puste słowa
- projekty domków letniskowych dostosowane do Twoich potrzeb i wizji estetycznej
- wysokiej jakości materiały budowlane: wyselekcjonowany świerk i sosna
- konkurencyjne ceny domków letniskowych
- dostawa domu na Twój teren naszym transportem w dowolne miejsce w Polsce
- montaż w kilka dni
- sprzedaż domków letniskowych z możliwością zakupu na raty
Z przyjemnością pomożemy zrealizować Twoje marzenie o własnym domu, który stanie się miejscem szczęścia i harmonii dla całej rodziny!



















Harvia M3 ma klasyczny wygląd i przeznaczony jest dla małych saun opalanych drewnem. To dzięki niemu, podczas kąpieli, możemy doznać niezapomnianych wrażeń oraz odczuć tradycyjną atmosferę sauny. Ciepło oraz odpowiednia cyrkulacja powietrza gwarantują przyjemną kąpiel.

















