| Rozmiar zewnętrzny (m) | 3800×4800 |
| Grubość balika (mm) | 44mm |
| Powierzchnia zabudowy (m2) | 18.2 |
| Powierzchnia domku użytkowa (m2) | 17.5 |
| Powierzchnia podłogi (m2) | 18 |
| Powierzchnia sufitu (m2) | 18 |
| Powierzchnia dachu (m2) | 26 |
| Rodzaj dachu | dwuspadowy |
| Kąt nachylenia dachu ° | 15.4 |
| Deski dachowe | 19mm |
| Pokrycie dachu | opcja dodatkowa |
| Taras | nie |
| Podłoga | 19mm |
| Ilość pomieszczeń | 1 |
Preferujesz wypoczynek na łonie natury zamiast miejskiego zgiełku? Chcesz, aby Twoja działka była nie tylko piękna, ale także ekologiczna? Drewniane domki letniskowe od Horton to nie tylko komfort i praktyczność, ale także korzyść dla zdrowia.
W naszej ofercie znajdują się:
- przestronne, całoroczne domki letniskowe
- kompaktowe, tanie domki letniskowe
- domki z poddaszem
- nowoczesne domki letniskowe z przestronnym tarasem
Każdy domek można dostosować do Twoich preferencji i możliwości finansowych.
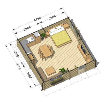
Domek letniskowy Wissous 5×4
Wissous 5×4 – domek, który zachwyca naturalnym światłem i integracją z otoczeniem. Przez duże okna i szklane drzwi swobodnie wpada światło dzienne.
Dwuspadowy dach o niewielkim nachyleniu zapewnia dobre odprowadzanie wody deszczowej i odporność na podmuchy wiatru.
Na powierzchni 17,5 m² zmieści się mała rodzina. W domku jest wystarczająco dużo miejsca na łóżko, sofę, stół obiadowy i niewielką szafę.
Horton – producent tanich domków letniskowych №1
Wybierając montaż domków letniskowych od naszej firmy, nie będziesz płacić za rozbudowaną kadrę administracyjną i wynajem wielkich biur. Zwrócisz się bezpośrednio do profesjonalistów! Współpracując z nami, otrzymasz:
- projekt z realistycznymi wizualizacjami 3D
- oficjalną umowę i kosztorys zawierający nasze usługi oraz ich ceny
- dostawę w dowolne miejsce w Polsce, montaż w ciągu 2-5 dni
- korzystną cenę rynkową od producenta bez zbędnych opłat
- 0,5% oprocentowania na raty
- 2-letnią gwarancję na domki całoroczne i wszystkie świadczone usługi
- realizację Twoich marzeń i pomysłów
Dzięki wieloletniemu doświadczeniu w projektowaniu i budowie domków, zaoferujemy Ci najlepsze rozwiązania, udzielimy konsultacji i kompetentnie odpowiemy na wszystkie pytania.














Harvia M3 ma klasyczny wygląd i przeznaczony jest dla małych saun opalanych drewnem. To dzięki niemu, podczas kąpieli, możemy doznać niezapomnianych wrażeń oraz odczuć tradycyjną atmosferę sauny. Ciepło oraz odpowiednia cyrkulacja powietrza gwarantują przyjemną kąpiel.

















