| Rozmiar zewnętrzny (m) | 5750×5750 |
| Grubość balika (mm) | 44mm |
| Powierzchnia zabudowy (m2) | 33 |
| Powierzchnia domku użytkowa (m2) | 31.8 |
| Powierzchnia podłogi (m2) | 32 |
| Powierzchnia sufitu (m2) | 34 |
| Powierzchnia dachu (m2) | 44 |
| Rodzaj dachu | dwuspadowy |
| Kąt nachylenia dachu ° | 14.5 |
| Deski dachowe | 18,5 mm |
| Pokrycie dachu | opcja dodatkowa |
| Taras | nie |
| Podłoga | 18,5 mm |
| Ilość pomieszczeń | 2 |
Domki letniskowe drewniane Horton zmieniły życie setek ludzi. W nich hałaśliwe miasto ustępuje miejsca spokojowi i jedności z naturą. W każdy projekt dom z drewna wkładamy nie tylko cały nasz profesjonalizm, ale także cząstkę duszy. Zapraszamy do dołączenia do społeczności naszych wdzięcznych klientów i Ciebie!
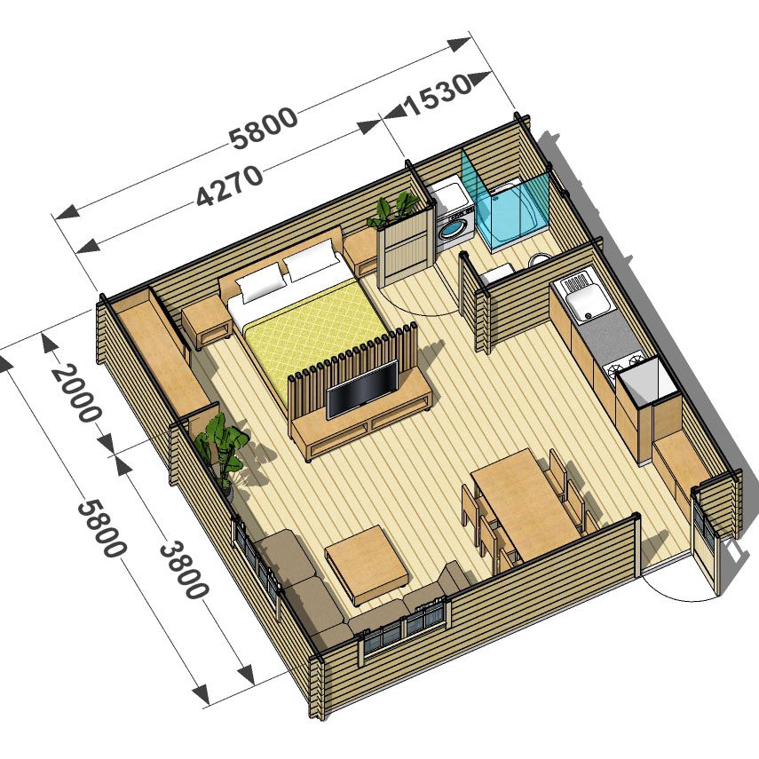
Dom 6x6: Nina
Dom z drewna pod klucz Nina ma powierzchnię 32 m². Wewnątrz czeka na Ciebie przestronność 30 m², którą możesz zaaranżować według własnego gustu, tworząc kilka stref:
- kącik do oglądania filmów z dużą sofą i telewizorem, gdzie można spędzać wieczory po ciężkim dniu
- kuchnia, w której zmieści się sprzęt AGD do gotowania oraz stół jadalny
- duża sypialnia, gdzie można ustawić podwójne łóżko i szafę
W domku przewidziano łazienkę o powierzchni 3 m², w której znajdzie się miejsce na kabinę prysznicową, toaletę i nawet pralkę. To oznacza, że będziesz mógł cieszyć się komfortem nawet z dala od miasta.
Gotowe domki letniskowe na sprzedaż od Horton
Dlaczego warto zamówić letnie domki letniskowe właśnie u nas? Ponieważ budujemy z duszą! Dbamy o każdego z naszych klientów i oferujemy przejrzyste warunki współpracy, a także:
- oficjalną umowę z szczegółową specyfikacją na każdą budowlę
- profesjonalne konsultacje przed i po zakupie od naszych specjalistów
- dostępne gotowe domki drewniane letniskowe ceny
- dostawę na terenie całej Polski własnymi siłami
- szybką budowę domów w zaledwie kilka dni
- korzystne raty i domy w leasing
Budujemy jakościowo i niezawodnie, abyś mógł cieszyć się swoim nowym domkiem bez zbędnych kłopotów!
Budowniczy domów drewnianych w Polsce
Nie przegap okazji, aby stworzyć swój idealny dom z drewna w Polsce! Wypełnij formularz kontaktowy, aby uzyskać bezpłatną konsultację, a nasz menedżer szybko się z Tobą skontaktuje. Rozpocznij swoją podróż do przytulnego letniego domku już dziś!













Harvia M3 ma klasyczny wygląd i przeznaczony jest dla małych saun opalanych drewnem. To dzięki niemu, podczas kąpieli, możemy doznać niezapomnianych wrażeń oraz odczuć tradycyjną atmosferę sauny. Ciepło oraz odpowiednia cyrkulacja powietrza gwarantują przyjemną kąpiel.

















